7 История северного крестьянства. Т. I. Архангельск, 1984. С. 46-47.
      8 Супинский А.К. К истории земледелия на Русском Севере // СЭ. 1949. № 2. С. 138.
      9 Мерцалов А.Е. Обозрение Заднесельской волости по писцовым книгам 1628 г. // Вологодский сб. Вып. V. Вологда, 1887. С. 72; Н.П. Никольский уезд //Там же. С. 186; РГИА. Ф. 1290. Он. 4. Д. 29. Л. 4-44.
      10 Милое Л.В., Вдовина Л.Н. Культура сельскохозяйственного производства // Очерки русской культуры XVIII в. Ч. I. M., 1985. С. 39-146.
      11 АРАН. Ф. 3. Оп. 10-а. Д. 41. Л. 3; Д. 40. Л. 4-4 об.; Оп. 10-6. Д. 27. Л. 2 об.; Д. 20. Л. 4 об.
      12 Абрамов Ф.А. Собр. соч. Т. 3. Л., 1991. С. 24.
      13 Воронов Г. Из Устюженского уезда (Новгородской губ.) // Тр. ВЭО. 1878. Т. П. СПб., С. 246; Волоцкий В. Луговодство (По части сельского хозяйства Грязовецкого уезда) // Вологодский сб. Вып. II. С. 13.
      14 Засецкий А.А. Ответы на экономические вопросы, касающиеся до земледелия в Вологодском уезде // Тр. ВЭО. 1773. Кн. XXIII. С. 222-248; Крестинин В.В. Исторический опыт о сельском старинном домостротельстве двинского народа на Севере. СПб., 1785. С. 7-17, 32-39.
      15 Штукенберг И.Ф. Статистические труды. Статья XXIII – Описание Вологодской губ. СПб., 1858. С. 9-25; Дилакторский С.А. Экономический быт крестьян Двиницкой вол. Кадыниковского уезда // ВГВ. 1899. № 44. С. 2; № 48. С. 2; № 50. С. 2; Кен Ф. Агрономическое путешествие по некоторым уездам Вологодской губ. в 1854 г. // ЖМГИ. 1856. Кн. 2. Ч. 59. С. 261-275; Иваницкий Н. Сольвычегодский крестьянин, его обстановка, жизнь и деятельность // ЖС. 1898. Вып. I. С. 4-28; Котляревский П.В. Экономический быт крестьян северо-восточной половины Вологодской губ. // ВГВ. 1892. № 24-52; 1893. № 1-13; ГАВО. Ф. 652. Оп. 1. Д. 62. Л. 5; Д. 108. Л. 6 об.-17; Ф. 883. Оп. 1. Д. 214. Л. 64-66 об.; Услар П.К. Вологодская губ. // Военно-историческое обозрение Российской империи. Т. II. Ч. III. СПб., 1850. С. 13, 299-300; АИЭА. СО КЭ 1966 г. Д. 2387. Л. 2-2 об., 8-29 об.; В-КО 1972 г. Д. 2871. Л. 4346; Дневник тотемского крестьянина А.А. Замараева. 1901-1922 годы // Библиотека Российского этнографа. М., 1995. С. 20-42.
      16 Шустиков А.А. Тавреньга Вельского уезда // ЖС. 1895. Вып. III-IV. С. 184-189.
      17 ГАВО. Ф. 652. Оп. 1. Д. 122. Л. 1 об.
      18 Историко-этнографический атлас «Русские». М., 1967. Карты «Земледелие»; АРГО. Р. 24. Д. 13. Л. 3; Р. 7. Д. 34. Л. 15; Ф. 24. Д. 105. Тетр. 1, IV. Л. 14, 90, 93. Тетр. II. Л. 7. Тетр. III. Л. 8 об., 27, 60 об., 78 об., 85, 97 об., 118; АИЭА. СО КЭ. 1966 г. Д. 2387. Л. 2-3, 9 об.-34 об.; В-КО 1972 г. Д. 2871. Л. 44 об.
      19 Иваницкий Н.А. Материалы по этнографии... С. 79.
      20 Андреевский Л.И. Из архива с. Никольского Вологодской губ. // Северный край. 1922. Вып. I. С. 27-33; Волоцкий В.А. Состояние земледельческого крестьянского хозяйства // ВГВ. 1873. № 23, 30-32; Савич Ф.Н. Вывозка хлевного удобрения в паровое поле зимой // ВГВ. 1878. №22. С. 3.
      21 Дубравин. Статистический очерк Вологодской губ. // Справочная книга для Вологодской губ. на 1853 г. Ч. И. Вологда, 1853. С. 26.
      22 Попов В. Заметки о Троичине // Вестник промышленности. 1862. Т. XIV. № 12. М., С. 63.
      23 Новгородский сб. Вып. V. Новгород, 1866. С. 255.
      24 Вологодский иллюстрированный календарь. Вологда, 1893. С. 62-65; Хозяйственное обозрение... С. 313-318.
      25 Очерки по лексике севернорусских говоров. Вологда, 1975; Эволюция лексической системы севернорусских говоров. Вологда, 1984; Белорусов Н. Об особенностях в языке жителей Вологодской губ. Варшава, 1887. С. 87-97.
      26 Чайкина Ю.И. История вологодских фамилий. Вологда, 1989. С. 39-65.
      27 ГАВО. Ф. 287. Оп. 1. Д. 410. Л. 10 об.-86 об.; Ф. 653. Оп. 1-4. Д. 325. Л. 1-101; Вестник Новгородского земства за 1901 г. Новгород, 1901. С. 18-22; Дневник тотемского крестьянина... С. 24-46, 246; Каргопольский уезд к 1926 г. Каргополь, 1926. С. 7-58.
      28 Большаков A.M. Община у зырян // ЖС. 1906. Вып. III. С. 221-236.
      29 Колесников П.А. Указ. соч. Гл. IV.
      30 См. историографию в указ. соч. П.А. Колесникова; Покровский Н.Н. О поземельной структуре крестьянской общины Русского Севера XV-первой половины XVI в. // Бахрушинские чтения. 1966. Вып. П. Новосибирск, 1968; Александров В.А. Сельская община в России (XVII-начало XIX в.). М., 1976; Власова И.В. Традиции крестьянского землепользования в Поморье и Западной Сибири в XVII-XVIII вв. М., 1984. Гл. III; Камкин А.В. Общественная жизнь северной деревни XVIII в. Вологда, 1990.
      31 Громыко М.М. Мир русской деревни. М., 1991. Гл. I—II.
      32 Антипов В. По вопросу об общине // ЖС. 1903. Вып. I-П. С. 248; Капустин С.Я. Формы землевладения у русского народа в зависимости от природы, климата и этнографических особенностей. СПб., 1877. С. 76-78; РЭМ. Ф. 7. Оп. 1. Д. 106, 119, 163, 166, 212, 331, 332, 693, 847; РГИА. Ф. 91. Оп. 2. Д. 750, 784, 815; АИЭА. СО КЭ. 1966 г. Д. 2387. Л. А-А об., 7, 10 об., 37; В-КО 1972 г. Д. 2871. Л. 4313 об.; Дневник тотемского крестьянина... С. 23, 78.
      33 Шустиков А.А. Общинное землевладение // ЖС. 1903. Вып. I—II. С. 241.
      34 ГАВО. Ф. 4389. Оп. 1. Д. 157. Л. 5 об.-12 об.
      35 Савелинев А. Потоп // Наш современник. 1990. № 10. С. 94, 99, 104.
      36 Итоги десятилетия советской власти в цифрах. 1917-1927 гг. М., 1927. С. 120-124; Данилов В.П. Советская доколхозная деревня: население, землепользование, хозяйство. М., 1977. С. 107.
      37 ГАВО. Ф. 4389. Оп. 1. Д. 309. Л. 1-13 об.; АИЭА. ВЭ ВО 1986 г. Д. 8710. Л. 12; Д. 8334. Л. 14; СО КЭ 1966 г. Д. 2387. Л. 22 об., 31; Зап. Северо-Двинского об-ва изучения местного края. Вып. IV. В.-Устюг, 1927. С. 31-35; ГАВО. Ф. 4389. Оп. 1. Д. 146. Л. 8-9, 12 об.-13, 30-34; Д. 218. Л. 7-118; Д. 219. Л. 8-78; Д. 220. Л. 93; Д. 221. Л. 3 об.-94.
      38 Шипунов Ф. Великая замятия // Наш современник. 1989. № 9. С. 152.
      39 Абрамов Ф.А. Указ. соч. С. 294, 302.
      40 Новиков Ю. Две судьбы // Наука и жизнь. 1988. № 6. С. 55-56.
      41 Тутунджан Д. Листы-разговоры из серии «По правде, по совести» // ВГМЗ. Экспозиция 1991 г.; АИЭА. ВЭ ВО 1986 г. Д. 8710. Л. 16-18; Д. 8334. Л. 12.
      42 Минеев В.А. Указ. соч. С. 374-375, 378.
      43 Лемешев М.Я. Продовольственная программа: экономические, экологические и социальные аспекты // Социально-философские проблемы современного сельского хозяйства. М., 1986. С. 29.
      44 Тутунджан Д. Указ. соч.
      45 Абрамов Ф.А. Указ. соч. С. 217, 269, 276.
      46 Тутунджан Д. Указ. соч.
      47 ГАВО. Ф. 652. Оп. 1. Д. 91. Л. 1.
      48 Башенъкин А.Н. Юго-западное Белозерье во второй половине 1-начале II тыс н.э. Л., 1986. С. 11-12.
      49 Макаров Н.А. Указ. соч. С. 4, 115-117; его же. Русский Север: таинственное средневековье. М., 1993. С. 62-63.
      50 Колесников П.А. Европейский Север России – памятник отечественной и мировой культуры // Проблемы создания историко-культурного атласа «Европейский Север Российской Федерации». М., 1991. С. 18; Башенъкин АН. Юго-западное Белозерье... С. 11; Макаров Н.А. Население Русского Севера... С. 115.
      51 Ильинский Н.В. Тотемский край в прошлом и настоящем. (Опыт характеристики производственных сил края). Вологда, 1920. С. 2.
      52 Макаров Н.А. Население Русского Севера... С. 117-118; его же. Русский Север... С. 40-50.
      53 Макаров Н.А. Русский Север... С. 81-83; Ильинский Н.В. Указ. соч. С. 1.
      54 Новгородская первая летопись старшего и младшего изводов. М.; Л., 1950. С. 192.
      55 Макаров Н.А. Русский Север... С. 69-87, 174-175.
      56 Там же. С. 67-69.
      57 Там же. С. 64-65.
      58 Колесников П.А. Северная деревня... С. 52-54.
      59 Пушкарев И. Указ. соч. С. 5-6, 30; Макаров И.С. Пушной рынок Соли Вычегодской в XVII в. // Ист. зап. 1945. Кн. 14. С. 148-159; Чтения в Московском об-ве истории и древностей российских. М, 1872. Т. VII. С. 34.
      60 Колесников П.А. Европейский Север... С. 18.
      61 Колесников П.А. Европейский Север... С. 18-19; его же. Из истории крестьянства и ремесленников Европейского Севера в XVI-XVIII вв. // Уч. зап. ВГПИ. Вып. 35. Вологда, 1967. С. 20-28.
      62 Савеличев А. Переборы // Наш современник. 1989. № 2. С. 98.
      63 Колесников П.А. Европейский Север... С. 19; его же. Из истории... С. 30-33.
      64 Ильинский Н.В. Село Леденгское Тотемского уезда Вологодской губ. // Русский экскурсант. Ярославль, 1916. № 7. С. 26-28.
      65 Этнографический сб. РГО. 1862. Вып. V. СПб. С. 12.
      66 Макаров Н.А. Русский Север... С. 67-69.
      67 Пушкарев И. Указ. соч. С. 59-60, 67, 71-78; Экономический быт... С. 8-82; Хозяйственное обозрение... С. 36-71; АИЭА. СО КЭ 1966 г. Д. 2387. Л. 26, В-КО 1972 г. Д. 2871. Л. 45 об.-46.
      68 Живая старина. 1903. Вып. III. С. 459.
      69 Бланк А.С., Катаников А.В. Череповец. Архангельск, 1966. С. 14-16; Дементьев В. Великое Устье. М., 1972. С. 195; Потанин Г. Этнографические заметки по пути от г. Николь-ска до г. Тотьмы // ЖС. 1899. Вып. I—II. СПб., С. 28; Олонецкий сб. Вып. IV. Петрозаводск, 1902. С. 40; АРГО. Ф. 24. Оп. 1. Д. 25. Л. 25-27; ГАВО. Ф. 4389. Оп. 1. Д. 146. Л. 1 об.; ВГВ. 1859. №11. С. 82; РЭМ. Ф. 7. Оп. 1. Д. 793. Л. 11; Д. 809. Л. 2-3.
      70 Шевырев С. Поездка в Кирилло-Белозерский монастырь 1847 г. Ч. I—II. М., 1850. С. 61, 98.
      71 ГАВО. Ф. 652. Оп. 1. Д. 82. Л. 1 об.
      72 Пушкарев И. Указ. соч. С. 115-116, 127-128, 136; Новгородский сб. Вып. V. Новгород, 1866. С. 252.
      73 Шустиков А.А. Тавреньга Вельского уезда. Этнографический очерк // ЖС. 1899. Вып. I—II. С. 189; Арсенъев Ф.А. Картины дальнего Севера. Щугор // Вологодский сб. Вып. П. С. 186; Макаров Н.А. Население Русского Севера... С. 117; АИЭА ВЭ ВО 1986 г. Д. 8334. Л. 10; РЭМ. Ф. 7. Оп. 1. Д. 251. Л. 12; Д. 276. Л. 3 об. Д. 309. Л. 5-7; ГАВО. Ф. 4389. Оп. 1. Д. 244. Л. 2-3 об.
      74 Вологодский иллюстрированный календарь... С. 67-77; Первая Всеобщая перепись населения Российской империи 1897 г. Т. VII. Тетр. I. СПб., 1901. С. IX.
      75 Куликовский Г.И. Из быта охотников Олонецкого края // Северный вестник. СПб. 1891. №3. С. 53.
      76 Ефименко П.С. Материалы по этнографии русского населения Архангельской губ. // Изв. ОЛЕАЭ. Т. XXX. Тр. этн. отд. Кн. V. Вып. 1-2. М., 1877. С. 217-218.
      77 Попов К.А. Охотничье право собственности у зырян // Изв. ОЛЕАЭ. Т. XXIII. Тр. этн. отд. Кн. 4. 1877. С. 96-98; Круковский М.А. Олонецкий край. СПб., 1904. С. 33-36; Дашков В. Описание Олонецкой губ. в историческом, статистическом и этнографическом отношении. СПб., 1842. С. 43-76.
      78 Семенов И. Кооперативное движение в Вологодской губ. // Вестник кооперации. 1911. СПб. Кн. I. С. 108; Большаков A.M. Очерки деревни СССР. 1917-1927 гг. М., 1928. С. 81; Северный край и Вологодская губ. // Ежегодник Вологодской губ. на 1914 г. Вологда, 1914. С. 11-13; Северное хозяйство. № 37-38. Вологда, 1920. С. 10-17; ВГМЗ. Ф. ВОЙСК. Д. 68. Л. 1; Дневник тотемского крестьянина... С. 167.
      79 АИЭА. ВЭ ВО 1986 г. Д. 8334. Л. 10; ГАВО. Ф. 4389. Оп. 1. Д. 164. Л. 23-34.
      80 Арсенъев Ф.А. От Шексны до Кубенского озера. Путевые очерки. Б/м., Б/г. С. 20; Шустиков А.А. По захолустьям Вологодской губ. // ГАВО. Ф. 4389. Оп. 1. Д. 146. Л. 3.
      81 Савеличев А. Потоп // Наш современник. 1992. № 11. С. 101-102.
      82 Судаков И. Несколько замечаний об особенностях говора в Устюженском уезде Новгородской губ. // ЖС. 1903. Вып. III-IV. С. 444.
      83 ГАВО. Ф. 4389. Оп. 1. Д. 157. Л. 2.
      84 АИЭА. ВЭ ВО 1986 г. Д. 8334. Л. 11.
     
     
      ГЛАВА5
      СЕВЕРНОРУССКАЯ КРЕСТЬЯНСКАЯ УСАДЬБА
     
      Типы жилых и хозяйственных построек XVI-XVIII вв.
      Народная культура жилища Русского Севера, в том числе Вологодской земли, освещена в научной литературе достаточно хорошо[1], поэтому в настоящем очерке можно ограничиться описанием существующих типов сельского жилища и основных этапов его развития.
      Памятники народной архитектуры – крестьянские постройки, дворянские усадьбы, церкви и часовни – в ряде мест сохраняются на Севере до наших дней. Это наше архитектурное наследие, ибо в подобных памятниках воплощаются все стороны жизни и деятельности, весь многовековой трудовой опыт, знания и даже мировоззрение народа.
      О жилище ранних этапов этнической истории русских (периода Древней Руси) известно не много, особенно это касается Русского Севера. Деревянное строительство, существовавшее во времена его славянского освоения, не оставило следов в известных археологических памятниках. Последние датируются ХП-ХШ вв., а на Севере еще позднее; они дают некоторое представление о городских усадьбах Вологды, Белоозерска и небольших городков. Правда, строительные приемы, довольно простые, которыми владели городские и сельские жители того времени, были одинаковы. Это дало возможность исследователям народной архитектуры распространить полученные из письменных источников сведения о городских постройках и на сельские [2].
      Северное крестьянское жилище уже в средневековое время представляло собой комплексы жилых и хозяйственных строений, имевшие названия дворы-хоромы. И по сей день крестьяне часто называют свои избы хоромами. «Плотнишная работа» развивалась на Севере издавна, и крестьяне-строители выполняли ее не только у себя на родине, но и в ходе освоения земель в конце XVI – начале XVII вв. в Приура-лье, а затем в Сибири, где строили хоромы. Высоким плотницким мастерством уже тогда славились «двиняне», «устюжане» и «работные люди» с Ваги Вологодского у.[3]
      Северная усадьба (двор-хоромина) состояла из разных по назначению и размерам построек – жилых и хозяйственных. В многочисленных актовых документах XVII в. можно найти свыше 40 названий отдельных помещений усадьбы: изба, горница, клеть, сени, подсенье, предместье, предизбье, мост, подклет, голбец, чулан, крыльцо, рундук, двор, хлев, сараи, стая, поветь, сенник, погреб, амбар, житница, гумно, овин, мякинница, мельница, кузница, баня и т.д.[4] В состав усадьбы входил и огород.
      Основой усадьбы являлась изба (истопка, истъба) – в XVI-XVII вв. четырех-, реже пятистенная, сложенная из трехсаженных сосновых или еловых бревен.
     

1 Типы северных крестьянских усадеб (а-ж)
а – Общий вид усадьбы в д. Мигуевская Вожегодского р-на. Однорядная связь двора с домом под разными крышами. Фото С.Н. Иванова, 1986 г.
 
б – Старинная крестьянская усадьба в Важском крае. Однорядная связь двора с домом под разными крышами (из кн.: Памятники древней письменности. . С 2)
 
в – Усадьба в д. Нижняя Вожегодского р-на. Однорядная связь двора с домом-пятистенком под одной крышей Фото С.Н. Иванова, 1986 г.
 
г – Однорядная связь двора с домом под одной крышей. Изба "на две половины" (передок и зимовка) с двором между ними в д. Вершина Вожегодского р-на. Фото С.Н. Иванова, 1986 г.
 
д – Усадьба в д. Вершина Вожегодского р-на. Глаголеобразная связь двора с домом. Фото С.Н. Иванова, 1986 г.
 
е – Глаголеобразная постановка избы и зимницы в д. Горка Бабушкинского р-на (из кн.: Фольклор и этнография Русского Севера. Л., 1973. С. 51)
 
ж – Крестьянская усадьба в Важском крае. Двухрядная связь двора с домом. Двухэтажная изба (из кн.: Памятники древней письменности... С. 2)

      К XVI в. это уже была трехкамерная постройка классического севернорусского варианта – «изба да клеть, а промеж ними сени». Правда, еще оставалась и двухкамерная – изба-сени. Неотапливаемая клеть использовалась для хранения зерна, скарба, а в летнее время как спальня, и в XVII в. в некоторых местах она превращалась в горницу – чистую комнату. Но последнее было характерно для жилища зажиточных крестьян, промысловиков-предпринимателей, вотчинников.
      Кроме избы и клети в усадьбе имелся хозяйственный двор, а в нем хлевы для скота, конюшня, сенник для сена, помещение для хозяйственного инвентаря. Такие постройки, как житницы, амбары, овины, гумна, находились, как правило, вне двора.
      В XVI-XVII вв. вся усадьба имела свободную планировку: изба стояла в глубине ее, позади избы – хозяйственные постройки. В то время еще не было утепленных хлевов, и для скота строили загоны, огороженные плетнем, а зимой в морозы стельные коровы и молодняк находились в избах [5].
      Судя по документам начала XVII в., на Севере появились крытые кровлями дворы и началось «объединение» всех строений двора. К концу XVII в. окончательно сложилась севернорусская крестьянская усадьба – комплекс избы с крытым двухэтажным двором под единой крышей – так называемая однорядная связь двора с домом (изба-сени-клеть-двор, стоящие в один ряд): «хоромное строение изба с сенми и с клетью, а возле них позади вплотную двор», «дом деревянный в одной связи изба, сени, напротив оного клеть, а вдоль них позади двор», «в линию... изба с сенми и клеть..., против всех оных сзади двор», «а во дворе хором изба на подклете, а под избою погреб, а против избы сенник на хлеву, да под сенником же анбарец»[6].
      Такие крестьянские усадьбы, по признанию архитекторов и этнографов, были ранним усадебным типом на Русском Севере. Его органичным развитием был вариант с так называемой двухрядной связью хозяйственного двора и трехкамерного жилища, когда изба и хозяйственный двор ставились в два ряда, параллельно друг другу и под разными крышами. Такой тип усадьбы развился в немногих местах Севера[7]. В пределах деревни усадьбы с однорядной застройкой ставились перпендикулярно улице или берегу реки, на котором располагалась деревня, фасадами такие избы обращались на улицу или реку. Усадьбы с двухрядной застройкой ставились вдоль улицы (реки), в них трехкамерное жилище «выходило» на улицу длинной стороной.
      Размеры построек на усадьбах XVII в. были следующие: трехкамерные хоромы могли достигать 14—20 м в длину, 6-7 м в ширину. Сама изба в плане приближалась к квадрату: 6,5 х 6,5 м – «изба трех сажен печатных». Длина двора обычно равнялась длине жилья, а ширина могла быть равна 14—22 м[8]. Крестьянские усадьбы огораживались изгородями разных видов: заплотом, жердями или тонкими кольями.
      Вне усадьбы находились такие хозяйственные постройки, как овины, гуменики, мельницы, мякинницы, иногда амбары (житницы), бани. Овины (для сушки снопов) и гумна (для молотьбы) находились вблизи полей. На гуменниках – особых огороженных местах хранили необмолоченные снопы и солому, в мякинницах – различные отходы. Зерно мололи на мельницах-мутовках. В XVI-XVII вв. мельницы ставили у воды (у озера или реки с запрудой), они имели до трех поставов и их устройство было одинаковым на всем Севере, а позднее – с конца XVII-XVIII вв. – такие мутовки появились в Приуралье и в Сибири, где их строили переселившиеся в новые места северяне. Существовали и мельницы-колотовки, в которых зерно дробили на крупу. Ветряные мельницы стали появляться гораздо позднее.
      Основой северного жилища был сруб (стопа, клеть)[9], который рубился из сосновых, реже еловых бревен в обло (в чашу, в угол) с выпусками углов. Затем сруб просушивали и ставили на фундамент (на стойки либо на камни, положенные под нижний венец сруба). Пазы между бревнами прокладывали мхом[10]. Нередко такие срубы назывались облыми. При рубке в верхней части каждого бревна (нижнего по отношению к другому) выбирали чашу и паз. В XVII в. появился способ рубки, когда паз вырубался в нижней части верхнего бревна.
      Сени, клети и хозяйственные постройки сооружались в виде столбовых конструкций, при которых рубка в заплот сочеталась с рубкой в обло. Знали северные крестьяне и другие виды строительной техники при возведении амбаров, дворов, погребов – соединение бревен в ладью, в замки и др. Основным строительным инструментом был топор в нескольких разновидностях для разного вида работ, применяли строители XVI—XVIII вв. и пазники, стружи, коловороты, тесла[11].
      При описании конструкций изб в документах XVII в. называются такие их виды: на взмоете, на подклете, поземная. Поземные избы, ставившиеся прямо на землю, были редкими в суровых северных условиях. Плотники старались поднять избу над землей: между полом и землей образовывалось высокое помещение – подклет (взмоет), которое использовалось в хозяйственных целях. Изба на высоком подклете – характерная конструкция для Русского Севера.
      В трехкамерном жилище рядом с избой (в одну связь) находились сени, а за ними – клеть, которая нередко была двухэтажной: «да против избы клеть на погребе», «клеть на подклете», «перед избою клеть о двух жирах». Клети строили не только двухэтажными, но и из двух половин. В верхних помещениях хранили скарб, продукты, летом там спали, в нижнем этаже размещали погреб и склад с хозяйственным инвентарем. На две половины клети разделялись врубленными посередине стенами, и здесь проходили дополнительные сени, из которых можно было пройти как в обе половины клети, так и на хозяйственный двор, который был продолжением жилища[12].
      Кровли изб и большинства хозяйственных построек были двускатными, самцовой конструкции, с покрытием тесом или дранкой. Кровля на самцах была характерна еще для древнерусских срубных построек, когда слеги крыш укреплялись на бревенчатом фронтоне (на самцах), а снизу доски тесового покрытия держались загнутыми сучьями-курицами. Двери изб были маленькими, однополыми из досок, скрепленных брусьями – «двери в деревянных пятах». Они вставлялись в косяки и имели порог. Волоковые окна прорубались каждое в двух соседних бревнах, задвигались изнутри щитом-волоком, располагались треугольником на торцовой стене (через среднее выходил дым из избы). В XVII в. это среднее окно иногда было косящатым, красным (с колодой) и слюдяным оконцем; стеклянным оно стало в первой половине XVIII в.
      Потолки в избе не всегда имелись, правда, кое-где уже в XVII в. получили распространение потолки из досок, брусьев или плах с центральной балкой-матицей. Глинобитные печи ставили в углу избы на рубленом подпечье (опечке). Они не имели трубы-дымохода, топились по-черному. Уже в XVII в. в избах были дощатые полы, лежавшие на лагах, врубленных на уровне второго или третьего снизу венца. Высота сруба при такой конструкции достигала 3 м.
      В дом «вело» крыльцо. По документам XVII в., известны различные его конструкции. Избы на высоких подклетах имели крыльца с прирубом, наряжал, на столбах, висячие. Это древнейшие виды крылец севернорусского жилища. Крыльцо с прирубом строилось из бревен, рубленных в обло с остатком. Крылечный сруб ставился на землю вдоль избы и закрывал вход в сени. Крыльцо на ряжах-срубных основаниях – тоже ставилось вдоль стены, верхний рундук и ступени снаружи закрывались досками и покрывались крышей. У висячих крылец рундук держался на двух выступающих из сеней балках. Столбовые крыльца возводились на одном-четырех столбах. В каждом из этих видов крылец имелась лестница (севернорусская черта), пристраиваемая вдоль стены жилой избы, а не клети. Другой своеобразной чертой, присущей крыльцам на Русском Севере, было наличие двух рундуков – вверху у входа в сени и внизу на земле[13].
      Описанные конструкции крестьянских построек аналогичны конструкциям городских построек. Свидетельства о такой же строительной технике, тех же конструктивных приемах находим в известиях об архитектурных памятниках городов XVI-XVII вв. Так, существовавший в Сольвычегодске дом знаменитых промышленников Строгановых (1565-1798 гг.) представлял собой хоромы из брусяного леса. В главном корпусе находились три комнаты на «трех подклетах». Окна в доме были волоковые и одно красное в среднем подклете. С левого бока дома размещались сени с чердаком, или «теремом» на верху. Через сени в углу имелась повалуша (башня) с тремя красными окнами, также на подклете. Справа в углу – другая повалуша на подклете «о четырех жильях», из которых в двух нижних были прорублены красные «кружальские» окна, а в двух верхних – красные обыкновенные с волоковыми окнами по сторонам. На пова-луше возвышалась шатровая крыша на точеных столбах. Рядом с этой повалушей располагалась еще одна, высокая, «о четырех жильях»: в низу ее – подклеть, верх ее – с шатровой крышей, с широкими «слухами» (слуховыми окнами), с маковицей на вершине и с украшением, покрытым «гонтинами в чешую» (вид короны у крыши). Позади этих хором находились «службы» (служебные хоромы)[14].
      Похожее на это описание встречаем в известии о древнем г. Белоозере-крепо-сти 1678 г., которая была «рубленой, пресла рублены клетки о 3 угла, вышина до обломов 10 венцов, а в иных преслах и меньше 10 венцов, до обломов 4 венца... покрыт был город пресла драню и дрань бурею по валу... Башня Богословская (в крепости. – И.В.) воротная о 3-х мостах рублена в углы о 4-х углах... и с обломы, покрыта тесом, а у той башни двои створчаты ворота»[15]. В писцовой книге времен царя Михаила Федоровича в XVII в. находим описание городка Рахлея в Устюгском у.: осадный городок Рахлей в 36 верстах от Устюга «пуст над озером над Палемским... рублен был 33 огородками, а на исподу... были избы; а над ним анбар, а около погреба огорожен тын, стоячей на иглах...»[16].
      Севернорусское крестьянское жилище средневековой поры имело сходство с культовыми сооружениями, возводившимися теми же плотниками-крестьянами. Древний тип северной церкви, а особенно часовни – это клетский храм (сруб-клеть), крытый двускатной крышей, с размерами, близкими к избе, с волоковыми и колодными окнами, иногда без подклета; под коньком крыши помещалась главка с крестом. Такова церковь Ризположения 1485 г. из с. Бородавы (ныне на территории Кирилло-Белозерского музея-заповедника).
      Другой вид клетских церквей относится уже к первой половине XVII в. Это шатровые храмы («древяна верх»), правда, такая церковь существовала в Великом Устюге уже в 1290 г. (Успения Святые Богородицы). В шатровых храмах начала развиваться горизонтальная их часть (трапезные, паперти, галереи, крыльца), в чем видно соединение культовых и мирских начал[17].
      Таким образом, в средневековый период крестьяне на Русском Севере возводили высокие, больших размеров срубные постройки, представлявшие собой единое целое жилья с хозяйственным двором. По источникам XVIII в., подобные дома-дворы были там повсеместны. Так, проведенное в 80-е годы XVIII в. подворное обследование 2581 деревни в уездах Архангельской губ.[18] показало, что 63,14% крестьянских домов (7595) относились к типичному севернорусскому трехкамерному жилищу – изба-сени-клеть; довольно много к тому времени оставалось и двухкамерных изб – 26,66% (3207). Вместе с тем заметным становился тип жилища, где вторым помещением вместо клети стала чистая горница (9,19%, или 1106 домов), а иногда и две горницы (1,01%, или 121). В наиболее обследованном из архангельских уездов -Шенкурском, граничащем с северными районами Вологодской губ. и занимавшем часть земель по Ваге, по которой в основном располагались важские (вологодские) деревни, эта картина выглядит следующим образом. В 954 шенкурских деревнях обследовали 5179 изб, из них 1703 (32,88%) представляли собой двухкамерное жилище типа одна изба-сени; 3355 (64,78%) – изба-сени-клеть; лишь 117 (2,26%) имели избу-горницу и 4 (0,08%) – избу-две горницы.
      Описание обычной крестьянской усадьбы жителей Двины находим в документах XVIII в.: «У Сергея Данилова Чухченемца на Ровдине Горе дом и дворище хоромного строения изба, клеть на подклети, хлев и сарай с тыны и заплоты, с столбами, с кровлею, с дверьми, с вороты, с обоконьи с окончинами...»[19] Следует полагать, что и в соседних вологодских деревнях к тому времени было крестьянское жилище, как шенкурское и двинское.
      При строительстве северных изб полы приподнимались над землей на 1,5-2 м и нижнее помещение – подклет, подъизбица – обустраивалось для содержания скота, хранения продуктов и утвари, а иногда подклет делали жилым. Полы были тесовыми, а потолки бревенчатыми. Печи оставались еще глинобитными или хрящевыми, в деревянных кожухах, без трубы. Ставили печь, как правило, в углу избы при входе. От печи над дверями к боковой стене устраивали полати. Из мебели в XVIII в. известны тесовые лавки, столы. В переднем углу избы размещали иконницы. В горницах уже начали появляться кирпичные печи с трубой, потолки становились тесовыми, волоковые окна заменялись красными со стеклом, здесь не было полатей.
      Двухэтажные дворы под двускатными крышами примыкали к жилью. В нижнем этаже двора в XVIII в. уже устраивали рубленые теплые хлевы для скота. Двое ворот вели во двор – со стороны улицы и огорода. На верхнем этаже-повети – держали корм, хозяйственный инвентарь, средства передвижения, там же для хранения домашнего имущества строили клети и горенки, в которых летом спали. Сюда наверх поднимались либо по лестнице из сеней, либо с улицы по помосту {взвозу, взъезду), по которому могла пройти и лошадь с телегой[20].
      Фасад северной избы имел очень живописный вид. На нем прорубалось несколько окон, украшенных резными и расписными наличниками. В дом вело крыльцо, часто также украшенное резьбой. На рубленном фронтоне сооружали балкон или галерею, опоясывающую дом на уровне окон. Дощатые поверхности стен и кровли украшались резьбой или росписью. Художественные традиции в украшении северного жилища находили отражение в церковной архитектуре, резьбе и росписи на домашней утвари, в вышивках и кружевных изделиях.
      Плотницкое мастерство северян использовалось в строительном деле не только в своих деревнях, но и за их пределами. Известны северные плотницкие артели, ходившие на работы в Петербург, в города и селения соседних губерний. В Вологде в то время имелось много домов мещан, которые ничем не отличались от крестьянских. Так, в описании Вологды начала XVIII в. отмечалось, что в городе (в Нижнем посаде, в Рощенье, на берегу Золотухи), в левобережье (в пригородном селе Фрязинове ) и в других местах было «много деревянных домов с косящатыми окнами, с украшенными резьбой крыльцами, князьками и застрехами»[21]. В крупных вологодских селах у зажиточных крестьян стал появляться и другой тип дома, состоящий из двух изб, сеней и двора (изба-двойня) или из ибы-иятмстенкы-сеней-двора на под-клете, получивших более широкое распространение позднее, в XIX в. У богатых вологодских крестьян избы, как отмечалось в документах, строились с балконами, находившимися под свесами крыш, с резьбой, росписью – в настоящем «деревянном русском стиле»[22].
      К XVIII в. на Севере сложились основные типы жилых и хозяйственных строений. Продвигаясь в новые земли, северяне строили там свои хоромы по этим образцам. Крестьянские архитектурные памятники той поры стали достоянием нашей строительной культуры[23]. В ней сохранялись как общие черты русского народного жилища, так и множество локальных особенностей, частью уходящих своими корнями вглубь веков, к периоду Древней Руси. Кроме того, на различных пространствах страны под влиянием природно-климатических условий, социально-экономического развития, характера землепользования и других факторов создавалось свое крестьянское жилище. Его различные типы-варианты закреплялись этнической традицией тех или иных регионов и также сохранялись в общерусской народной культуре жилища.
     
      Северное жилище ХIХ-начала XX в.
      Русское крестьянское жилище Х1Х-начала XX в. всех регионов России изучено наиболее хорошо по сравнению с народным жилищем предшествующих периодов. Исследователи прошлого века оставили полноценные описания деревенских построек. Особенно много таких описаний было осуществлено местными научными обществами, статистическими комитетами, врачами, проводившими санитарные обследования, и др. Русский Север и Вологодский край – не исключение, и местные архивы и различные рукописные отделы сохранили эти описания.
      О вологодском сельском жилище Х1Х-начала XX в. имеются данные в материалах различных обследований массового характера, что позволяет проследить эволюцию строительства как в целом, так и отдельных его элементов, которые имели местное своеобразие. Кроме того, сплошной материал по всей территории Вологодчины дал возможность выявить ареалы отдельных типов жилища, проследить аналогии с культурными ареалами, выделяемыми по другим этнографическим признакам и формам.
      Уже к середине XIX в. наметились такие ареалы по развитию народного жилища. Особенно это заметно при рассмотрении его типов. К тому времени начался процесс замены одного из помещений – клети – на второе жилое помещение — вторую избу, имевшую, как и первая, печь и такой же интерьер. Постепенно избы стали различаться на летнюю и зимнюю. К 80-м годам XIX в. подобная замена в крестьянском доме стала повсеместной. Это было вызвано социально-экономическим развитием деревни – внедрением поравнительности в землепользовании и разделами крупных крестьянских семей.
      Один из ареалов приобрел наибольшую четкость к 1840-м годам на юго-западе Вологодской губ. (Вологодский, Грязовецкий, Кадниковский уезды, запад Вельского, часть Тотемского). В крупных деревнях и селах появился следующий тип дома: две избы-сени, иногда вместо второй избы еще сохранялась светелка (горница). Ареал жилища с двумя избами сначала наметился именно в этой части губернии. В таких домах под избой устраивали чуланы-гульбища, в высокие хозяйственные дворы вели помосты-съезды. Но еще не всегда клали печи из кирпичей, оставалось много глинобитных печей, топившихся по-черному.
      В крестьянских избах центральной части губернии (Тотемский, Никольский, Устюгский, остальная часть Вельского у.) пока не улавливались новшества, за исключением того, что на крышу вместо дранки использовался тес. В этих уездах было много леса.
      В восточной части губернии, в Сольвычегодском и особенно в зырянских Ярен-ском и Устьсысольском уездах, избы крестьян были тесными, курными (черными), без фундаментов, сеновалы служили сенями, риги (овины) там не имели крытых гумен[24].
      Отдельные описания крестьянских построек остались в документах 40-50-х годов XIX в., которые также свидетельствуют об определенном переходном периоде в развитии народного жилища. Рассмотрим их в наметившихся к тому времени районах-ареалах. На западе и юго-западе Вологодской земли существовал тип дома, который известен по описаниям жилища в деревнях Череповецкого у.: избы одноэтажные, большие, обшиты тесом, с резными карнизами, пол деревянный, крыша с коньком или шатром, покрыта соломой, тесом или дранкой, с водостоками (желобами-потоками). Внизу устроен подвал для овощей и домашних вещей, вход в него разного вида: снаружи дома, из сеней или находится внутри избы. Клети-кладовые размещены рядом с избой через сени. Это еще дом – изба-сени-клеть, есть и избы на две половины (разделены заборкой, завесой или шкафом), план такой избы – так называемый севернорусский, когда печь находится в углу у входа, устьем «повернута» к противоположной стене, по диагонали от печи – передний угол с божницей. Двор «стоит» сзади избы, вход в него из сеней или сбоку двора. Житницы размещаются на белом дворе или против дома на другой стороне улицы. У каждого есть баня[25].
      В 50-60-е годы XIX в. в центре губернии существовали дома следующего вида. В Вологодском у., по описаниям с. Рабанги[26], появилось жилище переходной формы. Если даже оно и состояло из одной избы, то к ней сбоку пристраивалась горница, чистая, без печи, правда, нежилая и использовалась вместо чулана. У зажиточных крестьян были уже дома из двух изб: одна как горница и с печью. Встречались и двухэтажные избы, нижнее помещение которых служило зимовкой. Интерьер таких изб был одинаков – с печью в углу у входа, с полатями, с божницей в переднем углу, но пол в этих избах существовал не всегда. В этих более южных районах Севера теплее, и там пол и высокие подклеты не всегда сооружались. В подобных условиях черты более древнего жилья сохранялись долго. Крыши изб в центральных селениях губернии были двух видов: двускатные и четырехскатные, крытые соломой, редко тесом, так как здесь уже чувствовалась нехватка лесов. Окна по фасаду украшались росписью, роспись имелась и в горнице. Печи оставались глинобитными, топились по-черному. В подпол вел спуск-голбец. Двор был связан с избой по другому типу, нежели классическая северная однорядная связь, он стоял параллельно дому. Эта двурядная связь редко встречалась в северных условиях и была распространена в средней полосе России. В такой дом вели взъезды, они же служили крыльцами.
     

Типы северных изб (А – Б)
      А – Избы на подклете (а – г): а – изба конца XVIII в. В Тотемском у. Рис. Из: Осипова Д. П. Коестьянская изба на севере России (Тотемский край) Тотьма, 1924 г. С. 5 (Отдельный оттиск)
 
б– изба начала XX в. В д. Черепаниха Тарногского р-на Фото С. Н. Иванова, 1981 г.
В, г – современные избы в д. Ручевская Вожегодского р-на и д. Черепаниха Тарногского р-на Фото С. Н. Иванова, 1981 г. и 1986 г.
 
Б. Двухэтажные избы (а – г):
      А – в д. Кривуля Тарногского р-на Фото С. Н. Иванова, 1981 г.
 
б – в с. Самино Вытегорского р-на Фото Т. А. Ворониной, 1991 г.
 
в, г – в деревнях Вожегодского р-на. Фото С.Н. Иванова, 1986 г.
  
3. Старинные избы-двойни конца XIX - начала XX в. в деревнях Бабушкинского р-на (а, б) (из кн.: Фольклор и этнография... С. 49, 50):
      а – вид и план дома типа: две избы-сени-двор в д. Шилово: 1 – летняя изба, 2 – полати, 3 – вход в подполье (голбец), 4 – горница, 5 – сени, 6 – двор
 
б – вид избы-двойни «со срединой» в д. Горка

      В соседнем с Вологодским Тотемском у., в присухонских селениях (Манылово, Ихалица, Уварове, Шуйское), где климат, особенно по мере удаления на северо-восток, был более холодным, строились двухэтажные избы, и дом сохранял тип изба-сени-горница. В последней не имелось печей и полатей. Отапливались избы глинобитными печами по-черному[27]. В наиболее богатом с. Шуйское дома отличались от изб в других деревнях внешним видом и внушительными размерами, их красили, устраивали на фронтонах мезонины. В нижних этажах изб содержали скот.
      Севернее этих деревень на Кокшеньге, дома хотя и были одноэтажными, но состояли из двух изб (летней и зимней). Летняя изба, как и прежняя горница, еще нередко не имела печи и полатей. В сенях находилась повить (поветь), на ней клеть, под поветью хранили сено, а зимняя изба с сенями располагалась позади повети. Внутренние планы таких изб – типичные севернорусские. Оставались и курные избы, однако использовались они как помещение для кормления скота[28].
      По соседству с кокшеньгскими в верховажских деревнях (Вельский у.), тяготевших к центральным Вологодскому и Кадниковскому уездам, черные избы уже были редки, так как над печами устраивались дымоходы. В таких избах имелось редкое в то время помещение – шомнуша. Оно находилось в кухне позади печи вдоль всей длины избы. Здесь хранили посуду, продукты, оно представляло собой как бы дополнительную клеть хозяйки. Постепенно шомнуши исчезали, как исчезали и черные избы. В указанном уезде дома были представлены несколькими видами: старыми – изба-горница на подизбице и новым видом – изба-двойня на подизбице. Сени таких изб вели на повить. Во дворе находились хлевы, на усадьбе располагались амбар, погреб, баня, гумно[29].
      В соседних с этими деревнями – в Шенкурском у. (Архангельская губ.) – в 1850-е годы наблюдались круглые {крестовые) избы на высоких подпольях, где находились клети-кладовые и зимой в них содержался скот. Сени в таких домах переделывались в теплые помещения и получались еще дополнительные жилые комнаты. В подполье вел вход из избы – голбец (дверь возле печи с лестницей, уходящей вниз в подпол). Печи топились по-черному. В этих северных деревнях скотные дворы утепляли мхом[30].
      Далее на востоке Вологодского края, особенно на северо-востоке, где климат был суровым, а жизнь крестьян несколько «оторвана» от центральных, экономически более развитых районов, крестьянское жилище сохраняло свой старый вид. Так, в Никольском у. в селениях, примыкавших к тотемским деревням, избы оставались в основном курными (черными), еще было мало домов, имевших горницы, они состояли из одной избы [31].
      Зырянское население восточных районов Вологодской губ. (Устьсысольский, Яренский уезды), русское и зырянское в Сольвычегодском у. имело жилище следующего вида: дом-керка, одноэтажный, без плана и симметрии, без тщательности в отделке. Избы стояли тесно друг к другу или примыкали боком одна к другой. Со стороны улицы к дому пристраивалось открытое крыльцо с навесом, лестница в нем вела в сени (пос-воздя), из сеней вход на сеновал, прирубленный в длину дома, у него – верх и низ, с боков этой пристройки устраивался взъезд на сеновал. На верху сеновала хранили утварь и лежало сено, в низу его размещали хлевы и конюшню. Налево из сеней был вход в черную избу, направо – в холодную горницу-кум. В черной избе по лицу прорубали три-четыре отверстия (окна), закрывали их тусклыми стеклами или бычьими пузырями. В передний угол ставили стол-пызан и божницу, перед окнами навешивали полки, по стенам стояли лавки, справа от входа размещали печь без трубы, над входом настилали полати-пачерр, вход в подпол-голбец – находился у печки. В чистой горнице стены белили, окна там были высокие, симметрично расположенные, из мебели в ней имелись расписной стол, два-три стула, шкаф с посудой[32]. Как видно, такой дом не отличался от русской избы, также состоял из избы-сеней-горницы, имел такой же внутренний план, помещения и хозяйственные постройки аналогичного назначения.
      Таким образом, в рассматриваемый период северное народное жилище постепенно приобретало вид, который позднее распространился повсеместно – две избы-сени-двор. Несмотря на новшества, в нем сохранялись черты прежних времен: наличие клети, использование горницы в качестве клети, глинобитные печи, топившиеся по-черному, и др.
      Огромный массовый материал с описанием вологодского (севернорусского) жилища 80-х годов XIX-первой четверти XX в. позволил более точно представить ареалы типов жилища, которые постепенно складывались на этих пространствах, а также показать, к какому завершающему виду «пришло» севернорусское жилище, сохранявшее устойчивые традиционные признаки, часть которых можно найти и в современном крестьянском домостроительстве.
      Если рассматривать такой элемент жилища, как связь хозяйственного двора с домом, то можно отметить, что во всех вологодских районах существовал один тип крытого двора и однорядная (в ряд под одной крышей) связь его с жильем. Такими элементами подтверждается принадлежность народного жилища на территории Вологодчины к единому типу севернорусского жилища. Этот сплошной ареал имеет отклонения от общего в двух случаях, правда, редких в количественном выражении. Если обычно при однорядной связи двора с домом первый находится позади последнего, то в Вельском у. иногда встречались крестьянские дома, в которых двор располагался между избами (летней и зимней), и тогда под одной крышей находились летняя изба и двор[33]. В Великоустюжском у. при повсеместном распространении однорядной связи встречался и такой тип, когда «двор пристраивался сбоку избы». Это, скорее, напоминало глаголеобразную постановку усадьбы, когда дом и двор ставились в виде буквы Г[34].
      Что касается типа самого дома, то к 80-м годам XIX в. на территории всей Вологодчины был распространен трехкамерный дом изба-сени-изба, т.е. он состоял из двух изб – летней и зимней. Двухкамерное жилище (из одной избы и сеней) сохранялось в местах, близких к деревням финноязычного населения – на западе, рядом с
     

4. Избы типа: изба-изба-сени-двор (а – г):
а – двухклетная изба начала XX в. в Тотемском у. (из: Осипов Д.П. Указ. соч. С. 6)
 
б – в д. Кривуля Тарногского р-на. Фото С.Н. Иванова, 1981
 
в, г – в деревнях Тарасовская и Тинготома Вожегодского р-на. Фото С.Н. Иванова, 1986 г.
 
 
5. Избы с зимовками (А – Б)
      А. Старые избы конца XIX – начала XX в (a- г):
      а – с зимовкой сбоку избы в Тотемском у. (из: Осиповен. Указ. соч.
 
б – с зимовкой сзади избы в д. Пар Тарногского р-на Фото С.Н. Иванова, 1981 г.
 
в – с зимовкой сбоку избы в д. Милгора Тарногского р-на. Фото С.Н. Иванова, 1981 г.
 
г – изба с зимницей в виде буквы "Г" в д. Ручевской Вожегодского р-на. Фото С.Н. Иванова, 1986 г.
 
Б – Современные избы с зимницами (а, б). Фото С.Н. Иванова 1981 и 1986 годов
а, б, – с зимовкой сбоку избы в деревнях Черняково Тарногского р-на и Тинготома Вожегодского р-на
 
6. Старые избы-пятистенки (а – г): а – изба конца XVIII в. в Тотемском у. (из: Осипов Д.П. Указ соч. СП)
 
б – изба конца XIX в. в д. Горка Бабушкинского р-на (из: Фольклор и этнография... С. 51)
 
в, г – избы начала XX в. в д. Кривуля Тарногского р-на. Фото С.Н. Иванова, 1981 г.
 
7. Современные избы-пятистенки (а – г):
      а – вид и план избы в д. Горка Бабушкинского р-на, 1965 г. (из: Фольклор и этнография... С. 62):
      1 – горница, 2 – кухня, 3 – прихожая, 4 – кладовая, 5 – коридор, 6 – крыльцо с лестницей, 7 – двор
 
б – изба в д. Нижняя Вожегодского р-на. Фото С.Н. Иванова, 1986 г.
 
в, г – в деревнях Черняково и Черепаниха Тарногского р-на Фото С. Н. Иванова, 1981 г
 
8. Основные типы народного жилища северных областей (из: Маковецкий И.В. Архитектура русского народного жилища. Север и Верхнее Поволжье. М., 1962. Рис. 131)
 
9. Вид и план избы-шестистенка в д. Дмитриево Череповнцкого р-на Рис. М. М. Мечева, 1965 г.


      селениями карел и вепсов, и на востоке – в Сольвычегодском у. около зырянских поселений, а также встречалось в Грязовецком у.[35] Ареал трехкамерных изб в «чистом виде» занимал центр и северо-восточные уезды, что было связано с необходимостью строить такие дома в более холодном климате и проживанием в них семей, больших по численности, нежели на западе губернии.
      Прежнее жилище изба-сени-клеть уже не встречалось, так как холодная клеть стала второй избой или чистой (белой) горницей. Дом превращался в довольно длинное сооружение и не всегда ориентировался своей узкой стороной на улицу, а мог размещаться вдоль улицы (Сольвычегодский, Устьсысольский уезды). Обе избы ставились либо по разные стороны сеней (изба-сени-изба), либо оба их сруба находились рядом, и тогда дом превращался в тип изба-двойня, сзади изб размещались сени, а затем уже двор (Великоустюжский у.). Сени по-местному назывались либо коридор (Сольвычегодский, Устьсысольский, Тотемский, Грязовецкий, Кадниковский уезды), либо мост (Сольвычегодский, Великоустюжский, Грязовецкий, Никольский уезды). Клети-чуланы сооружались в сенях или на повети.
      Кроме этих помещений, в постройках конца XIX в. начали появляться зимовки[36], в которых из-за экономии топлива жили зимой. Это сооружение не имело под-клета, покрывалось двускатной крышей, его размер зависел от состава семьи, которая в нем проживала. Зимовка обычно пристраивалась сбоку дома, и тогда весь он в плане был похож на букву Г (Вельский, Грязовецкий, Сольвычегодский уезды)[37].
      Новшеством конца XIX в. стали избы-пятистенки. В срубе появилась пятая стена и помещение разделялось на комнаты стеной, а не перегородкой или занавеской. Сначала пятистенки строили зажиточные крестьяне. Такое строительство уже существовало в деревнях по Кокшеньге в Тотемском у., в Вельском и Кадниковском уездах. Этот дом делился на две половины: собственно изба и чистая комната (Тотемский, Вельский уезды). У четырехстенных изб сохранялось деление на избу и горенку (клеть). Если пятистенок оказывался двухэтажным, то верхние его комнаты были чистыми, иногда без печи (белая изба), нижние – с глинобитной черной печью, полатями, голбцем (входом в подпол) (Кадниковский у.)[38]. О появлении новых помещений в жилище того времени – светлиц (столовых горниц), о сохранении наряду с ними старых сеней, клетей и их назначении говорилось в местном фольклоре:
      ...Уж вы позвольте повыдти, повыступить
      Середи светлой-то светлицы,
      Середь столовой новой горницы...
      ...Уж я ходила, молодёшенька,
      В синики да в клети новые
      В сундуки да всё кованые...[39]
 
      Хозяйственный двор всех типов изб на Севере был двухэтажным, на верху помещался сеновал и чуланы-клети для хранения различных вещей, внизу – теплые хлевы, конюшни. На верхний этаж двора, как правило, вели высокие помосты-взъезды. Амбары, погреба, бани ставились не обязательно на усадьбе, их чаще выносили за ее пределы: амбары стояли либо перед окнами дома (Сольвычегодский, Тотемский, Великоустюжский, Вологодский, Вельский, Никольский уезды), либо сзади изб (Каргопольский, Вологодский, Грязовецкий, Устьсысольский уезды); бани могли находиться на краю деревни у воды – у реки или озера.
      Таким образом, усадьба вологодских крестьян на протяжение нескольких веков претерпела эволюцию от типа изба-сени-двор через вариант изба-сени-клеть-двор к ее последнему виду изба-сени-изба (горница)-двор. При этом сохранилась однорядная связь двора и дома. Дом своей фасадной стороной (чаще узкой) «выходил» на улицу. Такой же путь развития можно отметить на других территориях как самого Севера, так и мест, осваивавшихся севернорусскими крестьянами – в Вятской и Пермской землях, на Урале и в Сибири.
      В целом можно отметить наличие севернорусского жилищного комплекса во всех вологодских районах. Местами существуют вкрапления других региональных комплексов[40]. Так, более характерные для средней полосы России застройки усадьбы – двухрядная (дом и двор стоят параллельно друг другу под разными крышами) и глаголеоб-разная (постройки соединены в виде буквы Г) – случались в зоне севернорусского жилища везде, кроме районов Кириллова и Вытегры. В эту же зону вклинивался и южнорусский усадебный комплекс с открытым двором, стоящим отдельно от дома. Его местоположение фиксируется в полосе от Вологды до Кадникова. Хотя среднерусский и южнорусский усадебные комплексы встречались на Вологодчине очень редко, нали-
     

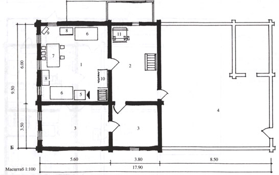
10. Вид и вертикальный разрез по АБ избы-двойни в д. Кишкино Вологодского р-на. Рис. М.М. Мечева, 1965 г.
 
 11. План дома в с. Усть-Алексеевское Великоустюжского р-на Рис. Т. И. Процевята, 1987 г
 
Масштаб 1:100
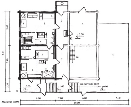
      12. Планы изб в д. Милгора Тарногского р-на (а – в). Рис. И.А. Черепова, 1981 г.
      а – изба-двойня (А, Б): А – план на отметке 1,65: 1 – печь, 2 – скамья, 3 – голбец, 4 – полати, 5 – шкаф, 6 – умывальник, 7 – сеновал, 8 – сени, 9 – жилые комнаты
 

      чие элементов жилища несеверного вида свидетельствует о взаимосвязях и общем развитии этой народной культуры на различных территориях.
      Этническая специфика жилища наиболее отражается во внутренней планировке жилых и хозяйственных построек. Это самый устойчивый признак, не изменявшийся веками, местами сохранившийся до настоящего времени. Особенно это касается интерьера избы – расположения печи, переднего угла, мебели. Из известных типов внутренней планировки дома, характерных для жилища восточных славян, на Русском Севере сложился так называемый севернорусский план[41], при котором справа или слева от входной двери избы ставилась русская печь, обращенная своим устьем (челом) к противоположной от входа стене (обычно фасадной). Угол избы по диагонали от печи считался передним (красным, большим), в нем находилась божница с иконами. Здесь же в переднем углу стоял стол. Вдоль стен размещались лавки. От печи над входом к боковой стене настилали полати, на которых спали. Вдоль той боковой стены, у которой стояла печь, находилась кухня (кутъ, закуток, середа, заборка). Такой интерьер жилища был возведен в узаконенную народную традицию.
      На территории губернии есть вкрапления другой планировки избы, характерной для иных русских регионов. Так, южнорусский план отмечается в Тотемском и Вельском уездах. При таком плане печь располагалась в дальнем от входа углу избы, наискось от входной двери; по диагонали от печи между дверью и передней длинной стеной, выходящей окнами на улицу, располагался передний угол. В Бело-зерье встречался еще один вид плана – западнорусский, при котором положение печи было такое же, как в севернорусском, но ее устье оказывалось направлено не к передней, а к боковой стене дома. При разных планах наблюдалось иное  расположение каждого места в избе (кухни, печи, переднего угла, полатей, мебели). Развитие того или иного плана связано с разной культурной традицией, сложившейся при разной этнической истории населения отдельных районов. Так, ареал южнорусской планировки сопоставим с показаниями антропологии о распространении у населения в районе Средней Сухоны, Кокшеньги черт в облике, формировавшихся в более южных пределах по отношению к Северу, в землях бывшего Ростово-Суздальского княжества. Ареал западнорусской планировки жилища имеет аналогии с данными диалектологии (черт западных говоров в севернорусском наречии).
      Строительная техника, конструктивные приемы, художественное оформление крестьянских домов в конце XIX-начале XX в. усовершенствовались и усложнялись[42] . Северное жилище по-прежнему было срубным. Фундаментом ему служили стойки-столбы, реже – камни. Правда, теперь уже появлялось по две избы, нередко двухэтажных, а значит, ставились два сруба. В них прорубались широкие окна, настилался потолок, встраивались лавки и полати, могла меняться схема входных дверей, а также входов-дверей в подклет, во двор и т.д. Значительные переделки при-
     

Масштаб 1:100
      Б – план на уровне земли (отметка 0,00): 1 – дровеник, 2 – скотный двор, 3 – подполье, 4 – яма
 
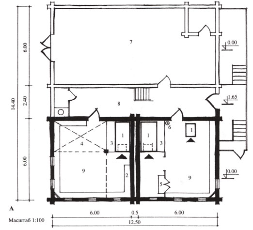
б – пятистенок с «боковушкой» (А, Б): А – план жилого этажа: 1 – комната, 2 – сени, 3 – сеновал, 4 – печь, 5 – кровать, 6 – стол, 7 – скамья, 8 – ларь
 
Б – план на уровне земли (отметка 0,80): 1 – курятник, 2 – печь, 3 – скотный двор, 4 – подсобное помещение, 5 – подполье, 6 – яма, 7 – сени
 
Масштаб 1:100
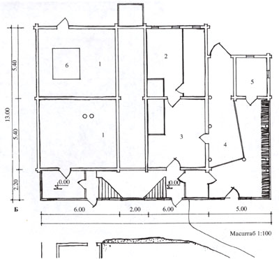
в – двухэтажная изба (А, Б): А – план первого этажа: 1 – комнаты, 2 – сени, 3 – хлев, 4 – скотный двор, 5 – печь, 6 – кровать, 7 – стол, 8 – скамья, 9 – вешалка, 10 – ткацкий стан (кросна)
 
Масштаб 1:100
Б – план второго этажа: 1 – комната, 2 – сени, 3 – кладовая, 4 – сеновал, J – печь, 6 – кровать, 7 – стол, 8 – скамьи, 9 – тумбочка, 10 – вешалка, 11 – ткацкий стан (кросна)
 
13. План дома типа: изба-изба-сени-двор в д. Черняково Тарногского р-на (А, Б). Рис. И.А. Черепова, 1981 г. :
А – план жилой части:
1 – комната, 2 – сени, 3 – сеновал, 4 – скотный двор, 5 – печь, 6 – кровать, 7 – диван, 8 – стол, 9 – вешалка, 10 – умывальник, 11 – полати, 12 – тумбочка, 13 – шкаф, 14 – холодильник,15 – ткацкий стан (кросна), 16 – вход на чердак
 
Б – план на уровне земли:
1 – подполье, 2 – скотный двор, 3 – кладовая, 4 – сеновал, 5 – хлев, 6 – яма
 
14. Конструктивные особенности жилища (а – г):
а – виды соединения бревен при строительстве изб (из: Осипов Д.П. Указ. соч. С. 4)
 
б – рубка в угол амбарного сруба в д. Тинготома Вожегодского р-на. Фото С.Н. Иванова, 1986 г
 
в – рубка в угол сруба дома и самцовая конструкция крыши в д. Антоново Вытегорского р-на. Фото Т.А. Ворониной, 1991 г
 
г – рубка в угол сруба бани и подкладка камней под сруб в д. Тинготома Вожегодского р-на. Фото С.Н. Иванова, 1986 г.
 
15. Крыши изб (а – г):
      а – драночное покрытие крыши и устройство жолоба-водостока в д. Ручевская Вожегодского р-на. Фото С.Н. Иванова, 1986 г.
 
б – тесовое и драночное покрытие крыши избы в д. Ручевская Вожегодского р-на. Фото С.Н. Иванова, 1986 г.
 
в – водосток на избе в с. Самино Вытегорского р-на. Фото Т. А. Ворониной, 1991 г. г – конструктивная деталь крыши – курица в д. Займище Никольского р-на (из: Фольклор и этнография... С. 59)


      ходилось осуществлять при оборудовании бывшей клети в горницу или вторую избу.
      Высота срубов была от 16 венцов и более. Ближе к северу обычно строили самые высокие дома. Но можно заметить традицию возводить дом не более 16 венцов в северных, южных районах Вологодчины и в других северных землях – там, где прошла «клином» ростово-суздальская колонизация этих мест с Верхней Волги на Северную Двину до Белого моря. Эта традиция наглядно демонстрируется на карте, представленной М.В. Битовым[43]. Такой высоты срубы встречались в верхневолжских территориях, далее по Сухоне, Вычегде, Северной Двине, Емце, Онеге, куда попадали ростово-суздальцы.
      При строительстве по-прежнему применялась срубная техника, но топор уже не служил основным инструментом. Плотницкий инвентарь значительно пополнился различными инструментами и приспособлениями как своего кустарного, так и заводского изготовления. Благодаря этому можно было применять новые способы строительства. Так, появилась обшивка сруба тесом. Исчезла самцовая конструкция крыши, она заменялась стропильной, элементы же безгвоздевой конструкции сохранились в основном при возведении хозяйственных построек. На самцах, слегах и желобах крепились двускатные крыши конем; охлупное бревно скрепляло верхний стык скатов. Стропильные крыши могли быть двух-, трех-и четырехскатными. Ранее всего они появлялись над горницами или чистыми избами, затем – над всеми постройками. На деревенских постройках в Грязовецком у. встречались трехскатные крыши – лбом. Четырехскатными крышами покрывали пятистенки. Покрытие крыш повсеместно становилось тесовым; лишь там, где леса имелось недостаточно, их крыли соломой (черта, свойственная южнорусскому жилищу).
      Окна везде становились косящатыми, растворными. В пятистенках по фасаду насчитывалось от трех до пяти окон.
      В дом вели крыльца, как правило, с лестницами, так как дома были высокие. Об отдельных конструктивных элементах той поры можно найти свидетельства в местном фольклоре:
      ...Уж я возьму да двери за скобу,
      Отворю да двери на пяту,
      Зайду в светлу светлицю.
      ...Вы не гнитесь-ко половицьки,
      Не ломайтесь переводицьки...(балки
      под полом. – И.В.)[44]
      В северных и северо-восточных районах еще строили дома, на фронтонах которых находились балконы, мезонины. «...Диковинка в доме... мезонинчик или чердак, по-здешнему, – писал о таких домах Ф. Абрамов в повести «Вокруг да около», – да не просто какой-то там курятничек дощатый под крышей (такие теперь не редкость в новых домах), а настоящая комната с бревенчатыми стенами, с двумя окнами и балконом... и даже перильца у балкона...»[45]
      В сенях сохранялись клети-чуланы. Дворы были двухярусными с повитью наверху и хлевами внизу. В избах клали кирпичные печи с дымоходами, правда, оставались и глинобитные, иногда у глинобитной печи имелся кирпичный под (Важский край). Такое новшество также нашло отражение в фольклоре. Так, в свадебных причетах невест Кадниковского у. говорилось:
      ...Пойду я на кирпишну середу
      Ко родимой своей матушке...
      ...Уж вы позвольте повыдти...
      ....Да со кирпишной середы...[46]
      Середа-кухня стала называться кирпишной, так как в ней располагалась печь из кирпича.
      Севернорусской чертой в жилище можно считать наличие особого спуска в под-клет-голбца, размещавшегося возле печи у входной двери. Это был дощатый шкаф вдоль печи, с торца его возле печного шестка имелась дверь, от нее шла лестница, по которой спускались в подпол. Такие спуски наблюдались еще в курных избах. При строительстве белых изб этот шкаф убирался, а на его месте ставили деревянный короб, также вдоль печи, высотой 30-40 см от пола, в который встраивалась задвижная крышка, закрывавшая вход в полклет (западня, карзина). Иногда печь выдвигалась из угла избы и голбец переносился в запечье. Это более поздний вариант спуска, нежели западня.
      Появились и другие новшества в крестьянском жилище – встроенные перегородки между комнатами, новая мебель. Наряду с лавками и полками, а также грядками – платяными брусьями, в домах стояли стулья, сделанные по городскому образцу, выдвижные скамейки, шкафы и др. В пятистенках в чистых половинах русскую печь заменяли голландкой, убирали полати, стены обклеивали обоями.
      Хотя в целом севернорусское жилище, в том числе вологодское, сохраняло общие черты, локальное своеобразие в нем оставалось. Вологодский этнограф Н.А. Иваницкий подметил разнообразные детали, которыми различалось крестьянское жилище в отдельных районах края. Русские здесь, по его мнению, были неодинаковы по нравам, обычаям, быту и наружности. В болотистых местах Вологодского, Кадниковского и Тотемского уездов низкорослые, некрасивые, бедно одетые «плюгавые мужиченки», «лапотники», «чахлые бабы и дети» жили в се-
     

16. Типы крылец (а – е): крыльцо на ряжах. Грязовецкий у., 1920-е годы (ВОКМ. 823/26. Ф-745)
 
б – крыльцо с колоннами на земле. Д. Усть-Ковда Сольвычегодского у., 1920-е годы (ВОКМ. 823/165. Ф-844)
 
в, г – крыльца на столбах. Деревни Вожегодского и Тарногского р-нов. Фото С.Н. Иванова 1981 г. и 1986 годов
 
д – крыльцо на столбах. Фото С.Н. Иванова
 
е – современное крыльцо-веранда. Д. Нижняя Вожегодского р-на. Фото С.Н. Иванова, 1986 г.
 
17. Чёрные избы (а, б):
а, б – в Лежской вол. Грязовецкого у. 1920-е годы (ВОКМ. 823/164. Ф-843; 823/169. Ф-847)
 
18. Русская печь (из кн.: Осьминский Т.И. Указ. соч. С. 138):
      1 – шатер, 2 – душник, отдушка, 3 – засторонок, посторонок, 4 – поползуха, засов, вьюха, 5 – голбец, 6 – приступок, порог, 7 – опечек, ошосток, 8 – загнета, 9 – кожух, дымовод, 10 – карниз, 11 – печурка, 12 – горнушка, опечек, 13 – загнет(а), 14 – голубня
 
19. «Печной угол» в избе в д.Кривуля Тарногского р-на (а – в). Фото С.Н. Иванова, 1981г.:
      а – печь и голбец; б – место для кур под лежанкой
 
в – полати, голбец, печь


      рых низких, крытых соломой избах и «килейках». На востоке (Сольвычегодский, Устюгский уезды) рослые, красивые, бойкие устюжане и соляне (добывали соль) жили в «веселых», «красных» деревнях (избы их красноватого цвета из сосны) [47].
      Другой местный этнограф А.А. Шустиков, описывая крестьянское жилище Вельского, Кадниковского и Тотемского уездов, также отмечал его специфику. В местности Тавреньга сохранялись дома «старинной архитектуры»: в «передках» (летние избы) окна небольшие, с наличниками, разрисованными по-разному; возле этих изб пристраивались сбоку зимовки. Но встречались и большие хоромы в 5-6 сажень по лицу, а двор – в 12 сажень. По переду избы имелось шесть окон со вставленными стеклами. В хоромы входили через ворота, наверх вела лестница, от нее шла дверь в общую комнату – большую избу, из нее – в горницу, или шоношу (в такой комнате жила обычно девица-невеста). В избе в переднем углу находилась полка-подоконник с иконами, стояли лавки, над ними висели полавошники, возле дверей налево размещалась печка, битая из глины (в ней – предпечье и печушки – уг-


К титульной странице
Вперед
Назад